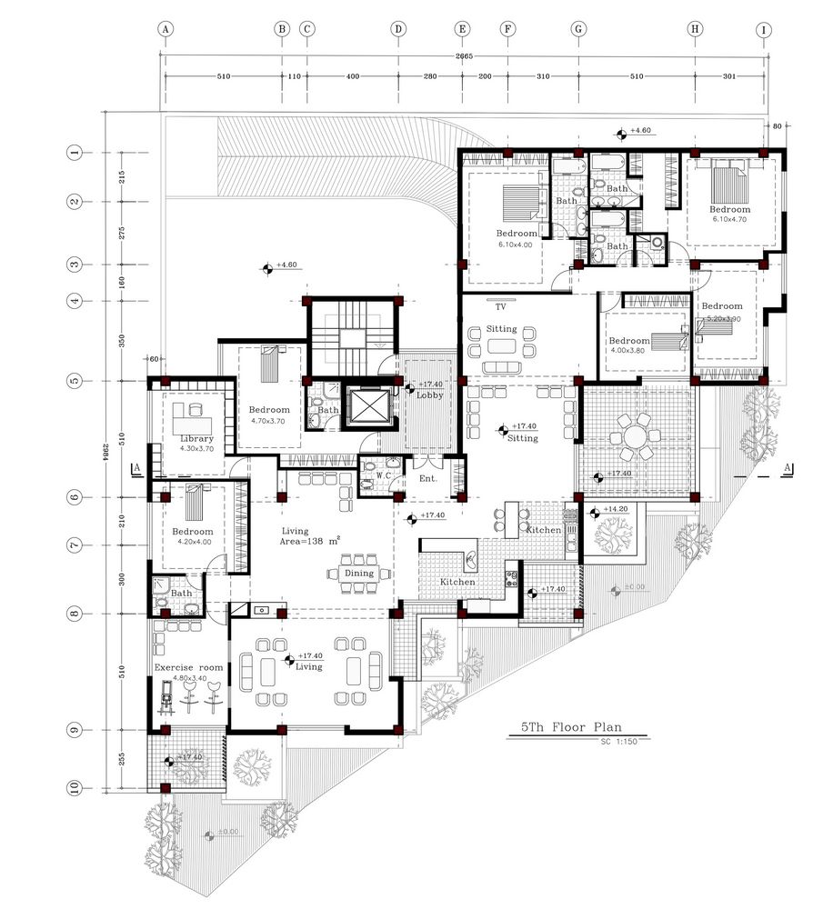
Project Title: Ghods Residential Complex

Location: Shah-e-Kord – Iran

Company: Third Line Consulting Engineers 

My Role:

– Architectural / Engineering Designer
– Assisted in developing conceptual design layouts
– Created detailed 2D drawings and technical documentation
– Prepared 3D models and design visualizations

Attribution: All project rights, drawings, and intellectual property belong to Third Line Consulting Engineers Group. Displayed strictly for non-commercial, portfolio purposes to demonstrate my professional contributions.

 

Scroll to Top